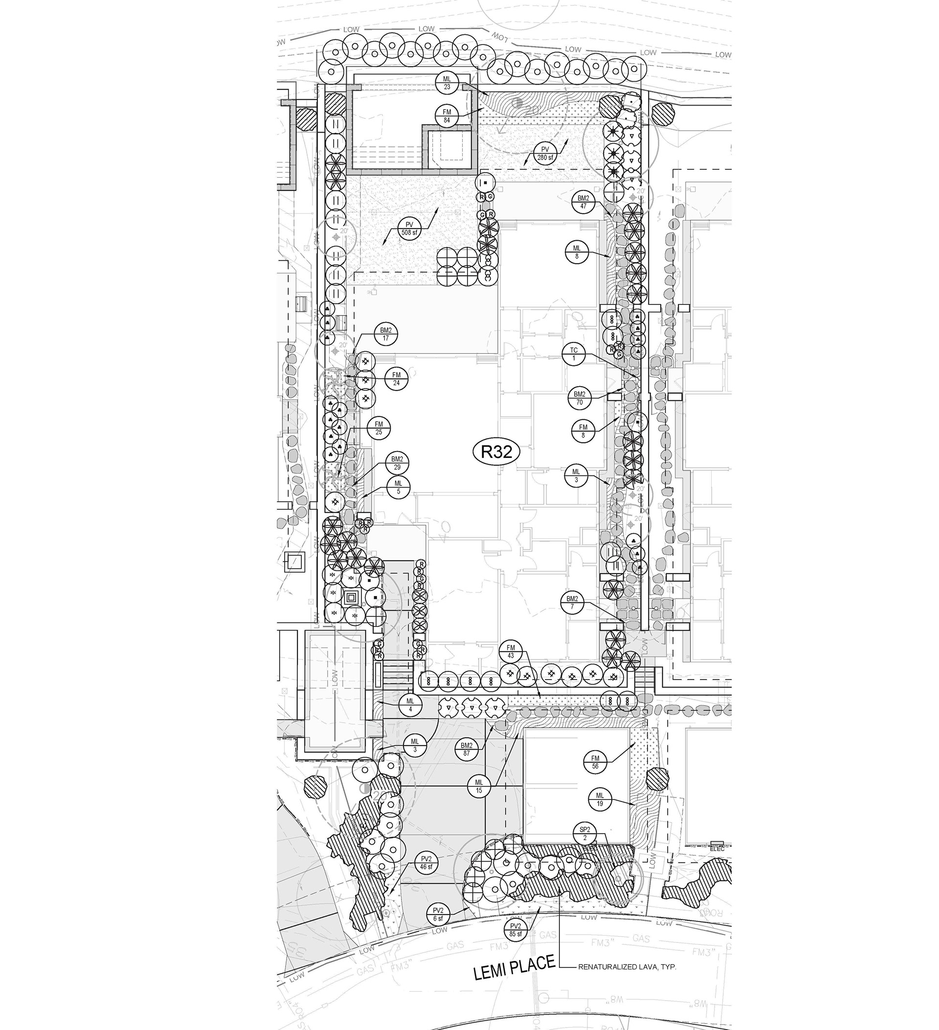
Situated on roughly 450 oceanfront acres, Kohanaiki stretches along one and a half miles of the Kona Coast. Kohanaiki is an private residential community in Hawai’i, carefully crafted on 450 oceanfront acres of the Big Island of Hawai`i. The Club features a Rees Jones-designed oceanfront golf course, a luxurious Beach Club, 67,000-square-foot Clubhouse and Spa. LACC produced the Design Development and Construction Documentation for the Beach Club, Special Events Pool, Golf Clubhouse and numerous private residences.